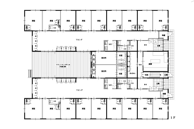
庭園があり開放感溢れており、平屋のため広々としたグループホームです。また県道7号線沿いの為、お車でのアクセスが大変良いホームです。
居室:和室18室 6畳+収納
敷地面積 1183㎡(358坪) 建築面積 500㎡(151坪) ※鉄筋コンクリート造
pagetop